愛知県一宮市の駐車場・道路の舗装工事専門会社 (株)アスロードの和田です。
個人宅駐車場の施工例のご紹介です。
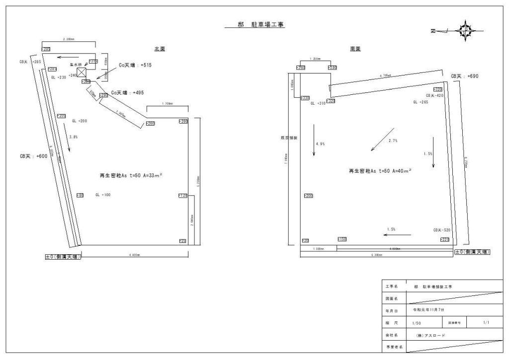
施主 :K様邸 駐車場
施工場所:岐阜県各務原市
施工時期:令和1年11月(施工期間:1日)
施工面積:駐車場 約75㎡
施工内容:①路盤生成(地ならし)(半日)
②アスファルト舗装(半日)
【経緯とご相談内容】
●カーポート設置の外構業者様からのご依頼でした。
【ご提案した内容】
●事前に測量を実施、計画高さを計画し、外構業者様に提出。
●計画高さをもとに、カーポート設置高さなどを打ち合わせ。
ご自宅駐車場について、お車を3~4台
停めたい場合など、面積が広い場合は、
コンクリートに比べてアスファルト舗装がお得になりますよ
お車1台分でも、穴の修繕でも、舗装のお困り事は何でも対応します
見積もりは無料ですので、お問い合わせお待ちしております





個人宅駐車場の施工例のご紹介です。
施主 :K様邸 駐車場
施工場所:岐阜県各務原市
施工時期:令和1年11月(施工期間:1日)
施工面積:駐車場 約75㎡
施工内容:①路盤生成(地ならし)(半日)
②アスファルト舗装(半日)
【経緯とご相談内容】
●カーポート設置の外構業者様からのご依頼でした。
【ご提案した内容】
●事前に測量を実施、計画高さを計画し、外構業者様に提出。
●計画高さをもとに、カーポート設置高さなどを打ち合わせ。
ご自宅駐車場について、お車を3~4台
コンクリートに比べてアスファルト舗装がお得になりますよ
お車1台分でも、穴の修繕でも、舗装のお困り事は何でも対応します
見積もりは無料ですので、お問い合わせお待ちしております





駐車場工事のことなら、「コンサルティングできる職人集団」のアスロードにお任せ下さい。
現地調査、施工図面、見積もりは無料で行っています。
アスロード3つのお約束
1.経験と実績に基づく提案力
2.わかりやすい見積もり
3.丁寧な施工
お問い合わせは、LINEかお電話もしくは弊社Webサイトのお問い合わせフォームよりお待ちしております。
http://www.asuroad.co.jp/
お問い合わせフォーム
0586-51-6177
お急ぎの際は、担当の和田まで
090-9266-8536
★LINEで簡単お見積り
LINE@に友だち追加していただくことで、
簡単にお見積もり依頼ができます。
アカウント名:株式会社アスロード
LINE@ ID:@alv8191j
■弊社LINE@ アカウントページ
https://page.line.me/alv8191j
【Mac/PC】スマホでLINEを起動 > その他 > 友だち追加 > QRコード

【スマホ】下記ボタンをタップ

スマホの方は、無料電話がご利用いただけます。
弊社LINE@アカウントページの〈電話マーク〉をタップ、LINEOUT(無料)からご連絡ください。
教えていただきたい内容
・現場の住所
・お名前若しくは会社名(お見積もり提出のため)
・ご希望の工事内容
・写真(あれば)
※お見積もりはPDFか画像の形式でLINEでお送りします。
駐車場工事、車止め、ライン引き、ブロック工事、フェンス工事、歩道や縁石の切り下げ工事(道路施工承認申請)まで、何でもご相談下さい。
現地調査、施工図面、見積もりは無料で行っています。
アスロード3つのお約束
1.経験と実績に基づく提案力
2.わかりやすい見積もり
3.丁寧な施工
お問い合わせは、LINEかお電話もしくは弊社Webサイトのお問い合わせフォームよりお待ちしております。
http://www.asuroad.co.jp/
お問い合わせフォーム
0586-51-6177
お急ぎの際は、担当の和田まで
090-9266-8536
★LINEで簡単お見積り
LINE@に友だち追加していただくことで、
簡単にお見積もり依頼ができます。
アカウント名:株式会社アスロード
LINE@ ID:@alv8191j
■弊社LINE@ アカウントページ
https://page.line.me/alv8191j
【Mac/PC】スマホでLINEを起動 > その他 > 友だち追加 > QRコード

【スマホ】下記ボタンをタップ
スマホの方は、無料電話がご利用いただけます。
弊社LINE@アカウントページの〈電話マーク〉をタップ、LINEOUT(無料)からご連絡ください。
教えていただきたい内容
・現場の住所
・お名前若しくは会社名(お見積もり提出のため)
・ご希望の工事内容
・写真(あれば)
※お見積もりはPDFか画像の形式でLINEでお送りします。
駐車場工事、車止め、ライン引き、ブロック工事、フェンス工事、歩道や縁石の切り下げ工事(道路施工承認申請)まで、何でもご相談下さい。
コメント