愛知県一宮市の駐車場・道路の舗装工事専門会社 (株)アスロードの和田です。
月極駐車場のアスファルト舗装施工事例のご紹介です。
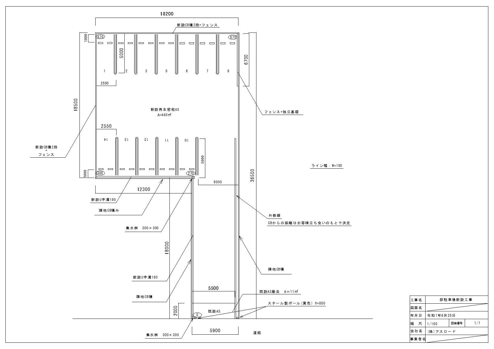
施主 :一宮市 Y様駐車場
施工場所:愛知県一宮市大和町馬引
施工時期:令和1年8月(施工期間:11日)
施工面積:駐車場 440㎡
施工内容:①ブロック積み・U字溝、集水枡設置(6日)
②地盤改良、路盤生成(地ならし)(3日)
③アスファルト舗装(1日)
④フェンス工事・ライン・車止め(1日)
【経緯とご相談内容】
●土地オーナー様は、県外に住まわれており、近くに住むご兄弟に草刈りをお願いしていたが、
申し訳なく思っていた。
●草刈りの手間を省くために、アスファルト舗装を行い、月極駐車場として土地活用を行うことを検討していた。
●他社に見積もりを取っていたが、金額の妥当性を確認するために、弊社に見積もり依頼いただいた。
【ご提案した内容】
●排水を考慮し、U字溝、集水枡の設置をご提案した。
●駐車しやすい、車両の配置レイアウトをご提案した。
【お客様の声】
●工事の状況について、電話等で適宜連絡いただいて、安心してお願い出来ました。
●金額の面でも相談に乗ってくれたのと、レイアウトの変更や、入口のポール追加などの要望にも適宜対応してくれて良かった。
遊休地の草刈り、お手間ではありませんか
駐車場にして有効活用しませんか、そのお手伝いを我々にさせてください
アスファルト舗装工事だけでなく、ブロック積み、フェンス設置、ライン引き、車止め etc.駐車場工事のことなら
何でも対応します

お問い合わせお待ちしております













月極駐車場のアスファルト舗装施工事例のご紹介です。
施主 :一宮市 Y様駐車場
施工場所:愛知県一宮市大和町馬引
施工時期:令和1年8月(施工期間:11日)
施工面積:駐車場 440㎡
施工内容:①ブロック積み・U字溝、集水枡設置(6日)
②地盤改良、路盤生成(地ならし)(3日)
③アスファルト舗装(1日)
④フェンス工事・ライン・車止め(1日)
【経緯とご相談内容】
●土地オーナー様は、県外に住まわれており、近くに住むご兄弟に草刈りをお願いしていたが、
申し訳なく思っていた。
●草刈りの手間を省くために、アスファルト舗装を行い、月極駐車場として土地活用を行うことを検討していた。
●他社に見積もりを取っていたが、金額の妥当性を確認するために、弊社に見積もり依頼いただいた。
【ご提案した内容】
●排水を考慮し、U字溝、集水枡の設置をご提案した。
●駐車しやすい、車両の配置レイアウトをご提案した。
【お客様の声】
●工事の状況について、電話等で適宜連絡いただいて、安心してお願い出来ました。
●金額の面でも相談に乗ってくれたのと、レイアウトの変更や、入口のポール追加などの要望にも適宜対応してくれて良かった。
遊休地の草刈り、お手間ではありませんか
駐車場にして有効活用しませんか、そのお手伝いを我々にさせてください
アスファルト舗装工事だけでなく、ブロック積み、フェンス設置、ライン引き、車止め etc.駐車場工事のことなら
何でも対応します
お問い合わせお待ちしております













駐車場工事のことなら、「コンサルティングできる職人集団」のアスロードにお任せ下さい。
現地調査、施工図面、見積もりは無料で行っています。
アスロード3つのお約束
1.経験と実績に基づく提案力
2.わかりやすい見積もり
3.丁寧な施工
お問い合わせは、LINEかお電話もしくは弊社Webサイトのお問い合わせフォームよりお待ちしております。
http://www.asuroad.co.jp/
お問い合わせフォーム
0586-51-6177
お急ぎの際は、担当の和田まで
090-9266-8536
★LINEで簡単お見積り
LINE@に友だち追加していただくことで、
簡単にお見積もり依頼ができます。
アカウント名:株式会社アスロード
LINE@ ID:@alv8191j
■弊社LINE@ アカウントページ
https://page.line.me/alv8191j
【Mac/PC】スマホでLINEを起動 > その他 > 友だち追加 > QRコード

【スマホ】下記ボタンをタップ

スマホの方は、無料電話がご利用いただけます。
弊社LINE@アカウントページの〈電話マーク〉をタップ、LINEOUT(無料)からご連絡ください。
教えていただきたい内容
・現場の住所
・お名前若しくは会社名(お見積もり提出のため)
・ご希望の工事内容
・写真(あれば)
※お見積もりはPDFか画像の形式でLINEでお送りします。
駐車場工事、車止め、ライン引き、ブロック工事、フェンス工事、歩道や縁石の切り下げ工事(道路施工承認申請)まで、何でもご相談下さい。
現地調査、施工図面、見積もりは無料で行っています。
アスロード3つのお約束
1.経験と実績に基づく提案力
2.わかりやすい見積もり
3.丁寧な施工
お問い合わせは、LINEかお電話もしくは弊社Webサイトのお問い合わせフォームよりお待ちしております。
http://www.asuroad.co.jp/
お問い合わせフォーム
0586-51-6177
お急ぎの際は、担当の和田まで
090-9266-8536
★LINEで簡単お見積り
LINE@に友だち追加していただくことで、
簡単にお見積もり依頼ができます。
アカウント名:株式会社アスロード
LINE@ ID:@alv8191j
■弊社LINE@ アカウントページ
https://page.line.me/alv8191j
【Mac/PC】スマホでLINEを起動 > その他 > 友だち追加 > QRコード

【スマホ】下記ボタンをタップ
スマホの方は、無料電話がご利用いただけます。
弊社LINE@アカウントページの〈電話マーク〉をタップ、LINEOUT(無料)からご連絡ください。
教えていただきたい内容
・現場の住所
・お名前若しくは会社名(お見積もり提出のため)
・ご希望の工事内容
・写真(あれば)
※お見積もりはPDFか画像の形式でLINEでお送りします。
駐車場工事、車止め、ライン引き、ブロック工事、フェンス工事、歩道や縁石の切り下げ工事(道路施工承認申請)まで、何でもご相談下さい。
コメント